WELCOME HOME!!! The property you have been waiting for is HERE! The main home features vaulted ceiling open concept kitchen/living/dinning, with a wood burning insert, heat pump, finished concrete floors (in-floor heat). Large primary bedroom with an ensuite, one floor living with second guest bedroom/office, full bath, and storage/utility/laundry room- lots of natural light and a great rustic mountain style! The recently constructed detached garage/shop and studio apartment is an amazing addition to the property, the lower level features 320 square feet of finished extremely versatile space, with electrical, plumbing, a bathroom- the uses are almost endless- serious crafting/hobbies/operating a home based business? The upper level studio suite is bright and open with gorgeous views of the Purcell & Rocky Mountains, full kitchen, full bath and laundry- potential to generate income or it could be an excellent option for a multi-generational family. The outdoor living space and yard is awesome, set up right now with chickens, green house, garden, and root cellar- the property is literally an urban farm! The home and detached shop/suite building are on one lot, and the side yard is a separately titled parcel, giving loads of future potential (another home/carriage house/future resale potential?). Edgewater has a great community spirit, a K-7 school- on the door step of backcountry adventures. Great ready to fall in love with this amazing home and property! But don’t hesitate… (id:4069)
Address
4777 CRESCENTWOOD Drive
List Price
$599,000
Sold Price
$584,000
Sold Date
09/05/2025
Property Type
Single Family
Type of Dwelling
Single Family
Style of Home
Ranch
Transaction Type
Sale
Area
British Columbia
Sub-Area
Edgewater
Bedrooms
2
Bathrooms
2
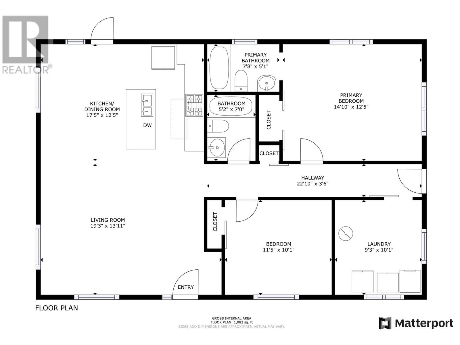
Floor Area
1,824 Sq. Ft.
Lot Size
0.33 Ac.
Year Built
2007
MLS® Number
10343402
Listing Brokerage
Mountain Town Properties
Postal Code
V0A1E0
Site Influences
Golf Nearby, Park, Schools, View
Features
Level lot






































































